See how we've helped homeowners, real estate professionals, and businesses across Vancouver Island with precise, professional floor plans.
From rough sketches to professional CAD drawings


Port Alberni, BC
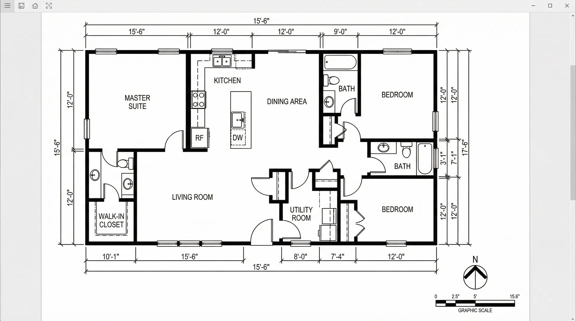
Complete floor plan documentation for a heritage home renovation project. Our detailed plans helped the homeowners secure permits and plan their renovation with confidence.
Trusted by homeowners and professionals across Vancouver Island
"ScanSpace made our renovation planning so much easier. The floor plans were incredibly accurate and delivered faster than promised. The team was professional and didn't disrupt our daily routine at all."
"I've used ScanSpace for multiple listings and the quality is consistently excellent. My clients love having detailed floor plans, and it definitely helps properties sell faster. Highly recommend!"
"As an architect, I need precision. ScanSpace delivers professional-grade CAD files that integrate seamlessly into my workflow. Their lidar technology captures details that traditional measuring simply misses."